
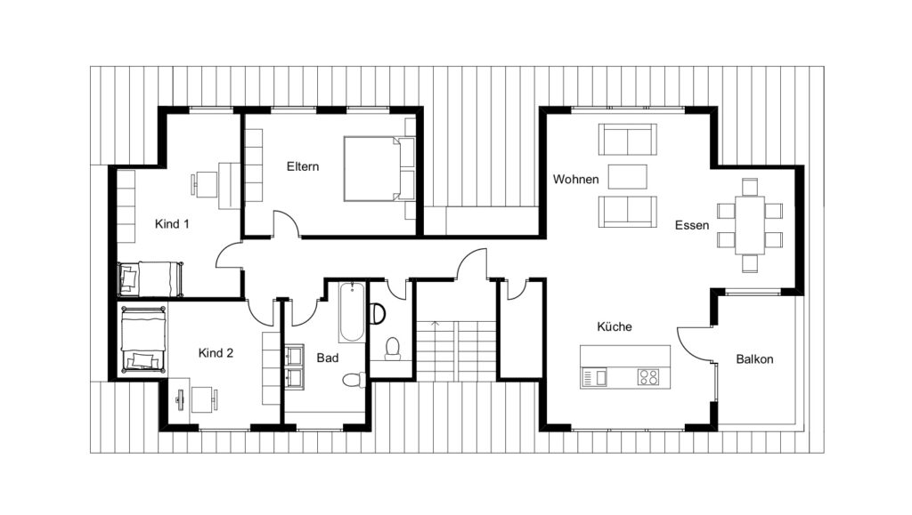
Attic extension Dortmund
Here is a top floor apartment with about 120 square meters of living space.
16 residential units
Here, in a central location, an apartment building with 16 residential units and approx. 900 square meters of living space is being completely renovated.




