
Nouvelle construction d'un immeuble d'appartements pour étudiants à Kassel
immeuble
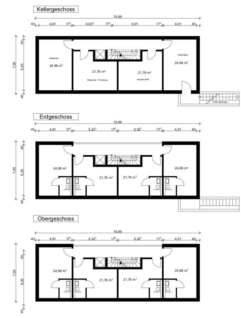
D'ici 2022, 8 appartements seront construits sur 2 bâtiments sur environ 240 m² habitables, soit un total de 16 appartements, chacun avec une terrasse sur le toit et un salon pour les futurs étudiants.


