
Villa de luxe à Düsseldorf
villa de luxe
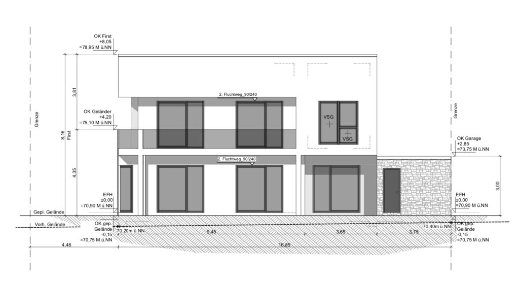
Voici une villa de luxe de la classe extra à Düsseldorf sur environ 300 mètres carrés de surface habitable
Voici une villa de luxe de la classe extra à Düsseldorf sur environ 300 mètres carrés de surface habitable